


Localisation
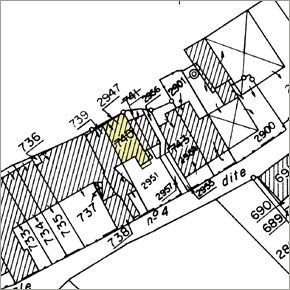
Références cadastrales : 1989 C2 2947
Milieu d’implantation : en écart
Description
Matériau (x) du gros œuvre et mise en œuvre : calcaire ; moellon ; enduit
Matériau (x) de la couverture : tuile plate
Etat de conservation : médiocre
Historique
Siècle(s): 2e quart 19e siècle
Commentaire historique : Maison de vigneron, reconstruite en 1844 (matrice cadastrale).
Statut juridique
Propriété privée
Nature de la protection M.H.
sans
Observation
Maison de vigneron typique avec cave semi-enterrée, accessible en façade par un escalier à l’origine couvert ; le logis est surélevé.
Date de l’enquête
2004
