

Désignation
Dénomination : maison
Genre : de notable
Parties constituantes : étables ; grange ; parc
Localisation
Références cadastrales : 1974 BC 272 ; 273 ; 274
Milieu d’implantation : en village
Description
Matériau (x)du gros œuvre et mise en œuvre : calcaire ; grès ; moellon ; enduit
Matériau (x) de la couverture : tuile plate
Etat de conservation : bon état
Historique
Siècle(s): 18e siècle; 19e siècle
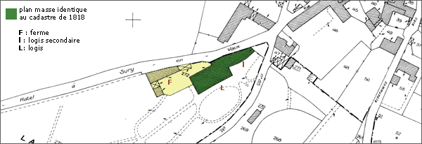
Commentaire historique : Cette maison figure sur le plan terrier du Chapitre de Bourges de la fin du 18e siècle avec l’appellation « La Busselle » et appartenant à Monsieur le curé de Sury. Le plan masse est identique au plan cadastral de 1818. Cependant en 1848-1851, d’importants travaux sont entrepris sur le corps de logis principal et sur le bâtiment. Les étables et granges ont été construites durant la seconde moitié du 19e siècle.
Statut juridique
Propriété privée
Nature de la protection M.H. :
sans
Observation
Cette maison de notable bien conservée dans un environnement arboré évoque les belles demeures bourgeoises qui se sont édifiées au 18e et au 19e siècles à la périphérie du village de Sury-en-Vaux
Date de l’enquête
2004

Corps de logis principal
(carte postale du début du 20e siècle)

